液化石油氣儲配站的建筑布局應滿足液化石油氣所具有的易燃、易爆、有毒的特性和便于操作管理的要求。
一、儲配站的總平面布局
1.儲配站的內部構成
液化石油氣儲配站一般由液化石油氣罐車裝卸棧臺(或管道輸送設備)、儲罐群、灌瓶間、機泵房、儀表間、殘液回收系統、抽空裝置、充裝檢斤、運瓶汽車裝卸場地、鋼瓶庫、罐車庫及輔助的,生產和生活設施構成。
為便于管理,保證安全生產,液化石油氣儲配站通常分設為生產區和生活輔助區兩大部分,中間采用2m高的非燃燒實體墻隔離。
生產區即指站內進行液化石油氣操作的整個區域,它又分成儲罐區和灌裝區兩個區域。儲罐區由儲罐群和鐵路罐車裝卸棧線構成,其他屬于灌裝區范圍。生產區是甲類火災危險區,應單獨設立出入口及門衛,重點進行安全管理。
生活輔助區包括輔助性生產、辦公設施及生活管理等建筑物和構筑物。一般應根據液化石油氣儲配站的實際需要來設置。在具體布置時,帶明火的或易于散布火花的機修車間、食堂等建筑物和構筑物應布置在離甲類生產區較遠處。
2.儲配站總平面布置的要求
在一個液化石油氣儲配站內,既有易燃、易爆的危險區域,也有因生產、生活需要而存在明火或其他火情的地帶,相關崗位之間還存在一定的內在聯系。為使液化石油氣儲配站在這種情況下做到安全運營,其平面布局應把握好以下要求。
(1)分區隔離的要求按照儲罐區、灌裝區、生活輔助區的劃分,用圍堤或圍堰分別隔離。
(2)滿足防火間距的要求各建筑物和構筑物之間,各區域之間,各生產設備之間,應滿足現行的國家標準《建筑設計防火規范》和《城鎮燃氣設計規范》中相應的防火間距要求。
(3)便于消防撲救的要求儲罐區、灌裝區、生活輔助區三區內,均應留有便于消防救護車自由進出的環行通道,便于發生事故時的撲救和疏散。當液化石油氣儲罐總容積超過1000m3時,生產區應設兩個對外出入口,間距不應小于30m。出入口寬度不應小于4m。
(4)有利于發展的要求主要指儲罐區和灌瓶間的布置要有利于以后的規模擴大發展,以免發展擴大后減少了防火間距或使其他建筑物拆遷。
3.儲配站的總平面布置結構
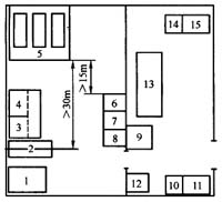
圖1-3-1和圖1-3-2所示分別為帶有鐵路罐車裝卸棧臺的液化石油氣儲配站和未設鐵路罐車裝卸臺的小型液化石油氣儲配站的平面布置示意圖。
?

由圖1-3-1看出:儲罐區(Ⅰ)由鐵路罐車裝卸棧橋(Ⅰ)或管道運輸液化石油氣的接收裝置,和包括殘液罐在內的全部儲罐組成;罐裝區(Ⅱ)由機泵房(4、5)、灌裝間(6)、儀表間(7)、汽車罐車裝卸臺(8)、罐車庫(9)和門衛與驗瓶房(12、11)組成。
變配電房、消防泵房、消防水池、維修車間、汽車庫和辦公生活設施等均布置在生活輔助區(Ⅲ)內。
在圖1-3-2 中,儲罐區、灌裝區和輔助區呈一字形排列,灌裝區居中。把作為主要操作場所的灌裝區布置在居中位置,滿足了安全防火間距的要求,使儲罐區、灌裝區與生活區內的維修車間、食堂、鍋爐房、配電室等建筑物的防火距離符合防火間距大小的排列次序和數值要求,從而提高了土地利用率。
儲灌區布置在灌裝區的一端,既有利于以后增建儲罐,又減小了兩者之間連接管路的長度,也方便了裝卸作業的操作配合。
生活輔助區內的許多設施與灌裝區聯系密切,二者在布局上相接,方便了操作人員和充裝鋼瓶的進出,也避免了來往車輛對罐區的影響。
?

二、儲罐區及其構筑物的布局
1.儲罐區及儲罐
①儲罐區應布置在該液化石油氣站常年主導風向的下風側或平行下風側,并選擇通風良好的地點設置。對有鐵路罐車裝卸棧橋的,儲罐區可沿鐵路裝卸線一側布置,并為罐區的發展留有余地。
②儲罐區的地面應鋪設不發生火花的混凝土地面。罐區四周要設立高度不低于1m的非燃燒實體防護圍堤,四側要有供消防車進出方便的通道,并有直接通向站外的安全出口,以便發生火災時人員疏散撤離和處理事故。
③儲罐的配置數量應根據液化石油氣站的設計總儲存量和儲罐容積確定,總設計儲量在400m3以上時,應選用大容積的儲罐。除應單獨設置殘液罐外,為保證接收、儲存、灌裝、倒罐等作業的正常運行,儲罐最少應配備兩臺。
④儲罐數量多的應分組布置,每組不超過四臺儲罐,組與組的間距不應小于20m。
科技賦能,AI強安——談AI技術在石油…
危險化學品安全技術說明書(PDF版)
170種危險化學品安全技術說明書匯編
化工企業冬季安全生產須知——防火篇
化工企業冬季安全生產須知——防凍凝篇
有限空間作業如何預防窒息和中毒
有限空間作業切記注意安全!
夏季有限空間作業安全風險防范
危險化學品目錄(2015版)
危險化學品分類及其危險特性
對制度落實不到位的原因調查及解決辦…
職工安全生產的權利和義務
危險化學品的儲存
有限空間作業安全知識
柴油罐的存放
加油站安全知識手冊