③緊急切斷系統內有易熔金屬熔斷關閉裝置。裝置作業時如發生大面積火災,操作人員已無法靠近罐車關閉閥門時,熔斷關閉裝置中的易熔合金會因火焰烘烤而熔化,自動關閉緊急切斷閥而制止泄漏。
④罐車使用過程中,如果發生管路和閥門的嚴重破壞,瞬間大量液化氣體外流,操作人員來不及或無法控制時,緊急切斷閥內的過流切斷裝置,在高速液流的作用下,能自動關閉通路止泄。
2.緊急切斷閥的結構類型
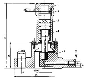
根據緊急切斷閥的結構和功能可分為有過流關閉功能的緊急切斷閥(見圖1-8-8和圖1-8-9)和無過流關閉功能的緊急切斷閥(見圖1-8-10)兩種。
?

根據操作系統牽引方式的不同,緊急切斷閥又可分為機械牽引式(見圖1-8-9)和油壓操縱式(見圖1-8-8和圖1-8-9)等。
機械牽引式靠機械轉動或鋼索拉動所產生的機械牽引力來平衡閥內彈簧的作用力,以驅動閥瓣的開閉動作。它具有結構簡單、操作方便、傳動迅速、制造修理方便等特點。但操作系統(如鋼索)易受損傷,且操縱距離較近。
?


油壓操縱式是靠安裝在閥門箱內的小型手搖油泵所給出的油壓來平衡閥內彈簧的作用力,驅動閥瓣移動而使閥門開、閉的。裝置在閥門箱內的手搖油泵(見圖1-8-1)是緊急切斷閥開啟的動力來源,搖動手柄向油路系統注油,達到一定壓力后,緊急切斷閥開啟,罐車的裝卸作業開始。油壓式緊急切斷閥應保證在工作壓力下全開。裝卸作業結束,轉動泄壓閥或泄壓手柄使油路泄壓,緊急切斷閥恢復關閉狀態。油壓式緊急切斷閥具有結構比較牢固、緊湊,操作方便,動作穩定可靠,使用壽命長等特點,但不如機械牽引式動作迅速。油泵和油壓系統加工制造復雜,修理較困難。
?

3.緊急切斷閥的工作原理
緊急切斷閥是保證液化石油氣汽車罐車在裝卸作業中安全運行的專用閥門。它是一種常閉閥門,裝卸作業中呈開啟狀態,在裝卸作業結束后以及運行過程中該閥處于關閉狀態。
一般情況下緊急切斷閥處于全閉狀態[見圖1-8-12(a)],這時凸輪、閥桿都未被頂起,先導閥和主閥都未被閥桿推動,主彈簧和過流彈簧的壓力方向相反,但主彈簧的壓力大于過流彈簧的壓力。在主彈簧的壓力作用下,主閥和先導閥都處于全關閉狀態,以保證在非裝卸作業過程中,閥門、管路出現意外的情況下仍能保持罐體密閉,切斷氣相和液相與外界的通路。
罐車裝卸作業開始,以手動機械牽引或液壓操縱,利用凸輪機構把閥桿頂起,主彈簧被壓縮,先導閥首先打開,主彈簧通過先導閥作用于主閥上的作用力同時消失。儲罐的高壓液化石油氣穿過閥桿與主閥座之間的空隙流入閥腔,在閥腔內逐漸汽化,并充滿主閥以下的閥腔與管路。當閥腔內的氣體壓力上升到接近主閥上部壓力,使主閥上下壓力趨于平衡時,主閥下部的過流彈簧便向上推開主閥瓣,使緊急切斷閥處于全開狀態[見圖1-8-12(b)]。這時可以緩緩打開球閥(太快容易引起過流關閉),便可以進行正常的裝卸作業。油壓式緊急切斷閥應保持在工作壓力下全開。其開啟性能要求持續放置48h,不致引起自然閉止。
在裝卸作業過程中,如出現管路或閥門破損,液化氣大量外泄或其他原因造成管路內流速過大,而又不能通過操縱系統關閉緊急切斷閥或球閥,在具有過流關閉功能的緊急切斷閥內,由于大量流體以極高的速度流經主閥下面閥腔,使閥腔內壓力降低,造成罐內與閥腔內出現壓力差。這時罐內液體壓力將克服下部過流彈簧的張力,進而推動主閥向下運動,使主閥關閉,切斷通路,達到緊急過流關閉的目的[見圖1-8-12(v)]。
?

裝卸工作結束后,釋放操作手柄或使油路泄壓,將閥桿復位即可關閉緊急切斷閥。裝卸作業過程中,如遇到管道破裂等意外火災事故,當周圍溫度超過70℃±5℃時,安裝在該閥上的低熔點合金熔融,油路泄壓或溶斷牽引連接件,緊急切斷閥關閉, 以防止事故擴大或蔓延。也可以通過罐車尾部的遠控系統,使油路泄壓或拉動操作手柄,使緊急切斷閥關閉。
緊急切斷閥自始閉起,應在10s內確實閉止。
4.對緊急切斷閥的基本要求
(1)具有足夠的強度和密封性緊急切斷閥一方面受到液化石油氣壓力的直接作用,另一方面還受到油壓的作用,要打開切斷閥所需要的油壓,一般為3MPa以上。緊急切斷閥的泄露或損壞,很容易引起事故,這就要求緊急切斷閥具有足夠的強度,并且不能泄漏液化石油氣,油路也不能漏油。
(2)具有良好的使用性能,操作方便緊急切斷閥是液化石油氣罐車上必不可少的安全附件,在每一次的裝卸作業中都要進行操作,這就要求它具有良好的操作性能,在給出關閉指令起,在10s內確實閉止。緊急切斷閥在工作壓力下全開,應持續放置48h不致引起自然閉止。
(3)具有良好的抗振性能液化石油氣罐車在運輸過程中,路況比較復雜,經常的在高低不平的道路上行駛,這就要求緊急切斷閥應具有良好的抗振性能。
(4)具有足夠的使用壽命。
?
科技賦能,AI強安——談AI技術在石油…
危險化學品安全技術說明書(PDF版)
170種危險化學品安全技術說明書匯編
化工企業冬季安全生產須知——防火篇
化工企業冬季安全生產須知——防凍凝篇
有限空間作業如何預防窒息和中毒
有限空間作業切記注意安全!
夏季有限空間作業安全風險防范
危險化學品目錄(2015版)
危險化學品分類及其危險特性
對制度落實不到位的原因調查及解決辦…
職工安全生產的權利和義務
危險化學品的儲存
有限空間作業安全知識
柴油罐的存放
加油站安全知識手冊