布袋除塵器是工業除塵設備的一種,其工作原理是利用多孔隙過濾濾布來過濾氣體中的粉塵,含塵氣體在通過濾布多孔纖維層時,粉塵顆粒通過篩濾效應、攔截效應、碰撞效應、擴散效應和靜電效應,被阻擋吸附在濾袋外表面,而潔凈氣體則穿過濾布排出。可見,濾袋是布袋除塵器正常運行的決定性因素。
一、故障現象
本文以一臺用于干混砂漿生產線收塵的32袋布袋除塵器為研究對象,該除塵濾袋為滌綸針刺氈。除塵器在投入運行不久,風機排風口出現冒塵現象。
二、原因分析
2.1 布袋除塵器的濾袋安裝固定原理布袋除塵器的濾袋安裝原理是依靠濾袋上的彈性脹圈將濾袋卡嵌在花板孔上,然后利用彈性脹圈的徑向膨脹力緊緊固定住布袋,具體情況如圖1所示。

布袋除塵器發生濾袋脫落故障,通常會有以下幾種原因:第一,濾袋沒安裝好,固定濾袋彈性脹圈未正確卡入花板孔內;第二,濾袋與花板孔不匹配,即固定濾袋的花板孔徑偏大,或濾袋袋口彈性脹圈外徑過小;第三,固定濾袋的彈性脹圈存在質量問題。
2.2 檢查濾袋的安裝質量經檢查,除塵器的32個濾袋彈性脹圈均正確卡入花板孔內,符合濾袋安裝要求。
2.3 檢查除塵器花板的孔徑經測量,除塵器花板孔尺寸為φ134.8mm~φ135.2mm,符合設計尺寸φ135±0.2mm的要求。
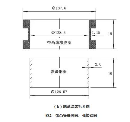
2.4 檢查濾袋的彈性脹圈拆開濾袋彈性脹圈處濾布,將包裹在濾布里面的彈性脹圈出。經比較,脫落濾袋和合格濾袋的彈性脹圈結構組成一致,均由一個彈簧鋼圈套一個帶凸緣的橡膠圈組成,如圖2所示:要保證濾袋彈性脹圈與花板孔之間密封嚴密且配合緊固,必須保證濾袋彈性脹圈與花板孔的配合方式為緊配合,且彈性脹圈上下凸緣外徑(含濾布厚度)要大于花板孔徑。測量所得內、外圈尺寸,經計算凹槽處外徑為135.3mm(濾布厚度按2.2mm計算),彈性脹圈與花板孔為緊配合;凸緣處外徑為142mm,大于花板孔徑。


因此得知,彈性脹圈的外形尺寸均在合格范圍內。
2.5 深入剖析排除上述原因,技術人員決定對組成彈性脹圈的彈簧鋼圈和帶凸緣橡膠圈作進一步剖析。
2.5.1 彈性脹圈的受力分析為了簡化力學模型,選取帶凸緣橡膠圈的上部凸緣圓周其中一微分段作為受力分析對象,受力情況如圖3所示。

濾袋正常狀態下,橡膠圈上部凸緣受彈簧鋼圈徑向張力F4、花板支撐力F1、濾布往下拉力對橡膠圈所產生頂面壓力F3、側面壓力F2以及橡膠圈下段部分自重對上部凸緣的拉力F5。其中F5和F1、F2、F3、F4相比非常小,可忽略不計。因此,根據受力平衡方程可知:F1=F3;F2=F4。對A點取矩,合力矩∑M=0。
濾袋失效狀態下,因彈簧鋼圈沿橡膠圈內孔下滑,導致橡膠圈上部凸緣失去彈簧鋼圈徑向張力F4作用。根據平衡方程可知:垂直方向F1=F3;水平方向∑F=F2≠0。對A點取矩,合力矩∑M=4.5×F2≠0,可知在外力作用下,橡膠圈上部凸緣有繞A點向內孔翻轉的趨勢。
2.5.2 彈性脹圈的作用機理及其失效成因由上述受力分析可知,彈性脹圈作用機理是依靠橡膠圈的上、下凸緣,限制軸向位移,并依靠彈簧鋼圈脹力限制徑向變形。彈簧鋼圈不僅提供安裝時的彈性脹力,而且對橡膠圈也起到一定徑向支撐作用。彈簧鋼圈與橡膠圈內孔之間必須是緊配合,如圖2所示,合格濾袋為過盈配合,過盈量為0.46mm;脫落濾袋為間隙配合,間隙2.03mm。當彈簧鋼圈與橡膠圈內孔之間配合為間隙配合時,彈簧鋼圈將沿橡膠圈內孔往下滑,導致橡膠圈上段凸緣截面因失去彈簧鋼圈側向支撐,故出現受力失穩傾翻現象;此外,彈性脹圈與花板之間因鋼圈下移,脹力迅速減小而失效,最終在外力作用下濾袋脫落。
三、故障排除及防范對策
將除塵器換上合格濾袋,經試運行48h,未發生濾袋脫落現象,一個月后再次回訪用戶,未有布袋脫落故障發生。所以,要想布袋除塵器避免發生濾袋脫落現象,應做到以下幾點要求:首先,正確選擇與花板孔尺寸匹配的合適濾袋;其次,正確安裝濾袋,將濾袋彈性脹圈正確卡嵌入花板孔內;再次,為防止濾袋彈性脹圈因其內部鋼圈下滑走位而失效,縫制彈性脹圈時,縫合線腳應盡量靠近橡膠圈下端面,這樣縫合后的橡膠圈下端部無足夠空間讓彈簧鋼圈下滑;最后,可將橡膠圈內孔設計成下小上大的階梯孔形式,既保證了內、外圈之間不發生軸向位移,又保證兩者之間可靠定位。
四、結語
隨著現代社會人們環保意識不斷提高,布袋除塵器被廣泛運用于各行各業當中。作為布袋除塵器的關鍵部件,濾袋制作質量和安裝質量都將直接影響到除塵器的除塵效果和除塵效率。一個合格的濾袋,不僅需要合適的濾布與合格的縫制工藝,還需要對產品細節嚴格把控。本文通過分析布袋除塵器運行中濾袋脫落故障,從多方面尋找原因,最終發現濾袋彈性脹圈的失效成因,并提出相應的解決對策。希望通過研究,能夠為濾袋設計以及制作行業健康發展做出貢獻。
垃圾焚燒煙氣超低排放改造技術探討
生活垃圾焚燒煙氣污染物的控制與處理…
乙烯基酯玻璃鋼在垃圾焚燒煙氣凈化系…
生活垃圾焚燒煙氣凈化處理技術
垃圾焚燒廠煙氣凈化SCR改造設計和脫…
煙氣脫硫副產物的處理與處置
回轉窯焚燒系統危廢處置煙氣CO超標分析
垃圾焚燒發電中的排放氣體控制技術
影響大氣污染的主要因素是什么?
焦爐煙氣脫硫脫硝凈化技術與工藝
硫化物的主要去除方法
脫硫方法的分類
中國CCUS技術發展趨勢分析
高爐煤氣干法除塵布袋周期破損原因分…
新型干法水泥窯捕集純化(減排)二氧…
汽車尾氣污染控制方法