大型砼梁板結構高支模的施工,一般難度都比較大。但只要精心編制了高支模專項施工方案,控制了高支模的搭設質量,就可以順利完成其砼澆筑。深圳會展中心的超高大跨度應力砼梁結構高支模的施工,就是這樣的成功實例。
一、工程簡要概況
深圳會議展覽中心是深圳市政府重點投資的大型公共建筑項目,占地約22萬m2。會展中心○E~○F軸之間為鋼筋混凝土主樓,地下3層,地上5層,地上各樓層(其標高為±0.00、7.5m、1.5m、30m、45m)在縱橫方向均有相應的框架雙排大梁,雙梁跨距均為30m為預應力砼結構。45m樓層的橫向雙梁,兩端各加15m懸挑部分,梁總長達60m。+45m樓層板厚200mm,其他各樓板厚均為250mm。各樓層中部留有12m寬的自動扶梯孔洞。
二、結構設計特點
1.結構跨度大:柱網間距縱橫向均為30m,柱斷面為4×4m,主次梁凈跨距26m。
2.懸挑梁段長:45m樓層橫向框架雙梁,南北向各挑出15m,懸挑范圍從④~○16軸,共360m長,懸挑部位投影面積達10800m2。
3.砼梁截面大:30m以下框架雙梁截面均為2×1m×2.75m(2×b×h,下同);45m框架梁縱向梁截面為2×1m×4.35m,橫向魚腹式梁截面為2×1m×(6.35~5.968),其懸挑梁段截面為2×1m×(5.968~2.826m)。
4.梁截面復雜:45m橫向框架梁為懸挑魚腹式梁,截面梁高從梁中兩側成弧線變化(6.35.→5.968→2.826m),其余縱橫向框架梁均為等截面雙梁。部分梁頂有水溝,并留有孔洞。
5.樓層層間高:1~2層層高7.5m,3~4層層高15m,○E~○F軸外懸挑梁段高度達45m。
6.自重荷載重:30m以下主框架梁自重的線荷載為13.7.5kN/m,全梁自重3575kN;45m橫向魚腹梁自重的線荷載平均為317.5 kN/m,其中懸挑梁段自重線荷載平均為100 kN/m,魚腹式大梁自重共8555 kN/m;45m縱向梁自重線荷載217.5 kN/m,梁自重5655 kN。
7.樓層洞口多:樓層平面變化大,洞口寬,造成滿堂腳手架一部分支撐須通過樓層向下傳遞荷載至不同高度的支承面,使得排架支撐系統的計算長度不統一。
8.預應力張拉:在砼梁預應力沒有張拉時,其大梁難以承受相應部位的自重荷載。
此外,后澆帶數量較多,使得許多原來的簡支梁、連續梁變為懸臂梁或斷梁。
三、模板支撐方案
由于工程設計采用超高大跨度帶懸挑的預應力砼梁結構,使之模板支撐施工難度很大,經研究論證后,根據工程具體實際情況,分別考慮:
1. ○E~○F軸跨內的各樓層砼梁結構采用滿堂鋼管腳手排架支撐,并在縱橫框架梁底的中部設置臨時支柱,以減少設計梁的跨度,提高梁的承載能力。臨時支柱分為組合鋼管柱和砼剛性柱,其柱承載力按完全能承受該區段本層全部施工荷載考慮。
組合鋼管柱設在框架梁底各1/3處,其柱截面尺寸為1.25×2m,由54根鋼管組合,鋼管縱橫向間距250×250,梁截面方向為6排,梁長方向為9排(參見圖1)。柱頂采用可調節支撐托,托頂布置100×100實木方材。柱底部與周邊鄰梁預埋的短鋼管相接,柱內部設有縱橫向剪刀撐,柱間用水平鋼管連接,與已施工的砼柱之間相互頂死。
砼剛性柱設在大梁后澆帶斷口處,并保持原有支撐系統,防止由于后澆帶的留設形成的斷梁或懸壁梁,在較長時間后形成徐變而下垂,產生端部裂縫。柱斷面分別為300×500(承載軸向力1700kN驗算),配盤8φ22,φ8@150和300×300(承載軸向力1000kN驗算),配筋8φ12,箍筋φ8@150。柱下端為固定端,與樓層砼之間按施工縫處理,上端為簡支座,在柱頂設一模板,使柱頂與樓底砼分開,但柱鋼筋全部錨入樓層梁板砼中。

圖1 鋼管組合柱示意圖
樓層空洞的上層有結構時,本層采用型鋼(I20)封閉洞口,以作為上部結構的支撐。型鋼沿短方向布置,跨度不得超過6m,若超過6m時,在其底部增設鋼管組合柱作為支撐。型鋼應和樓面預埋鋼板焊接,防止排架搭設時水平荷載使之產生位移。
樓層板底支撐常規高支模滿堂腳手架設置。其不同樓層板底模板支撐間距見表1。
不同樓層板底支撐間距 表1

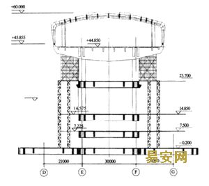
2.+45m樓層○E~○F軸框架大梁兩端于○4~○16軸之間南北兩側各向外挑出15m,澆筑該15外挑梁板結構時,需搭設45m高的高支模。故采用了鋼結構支撐和滿堂鋼管排架相結合的方案(參見圖2),即30m以下采用鋼格構柱梁系統支撐,30m至45m采用滿堂鋼管排架;其鋼管立桿底部支撐在鋼結構支撐系統的滿鋪工字鋼上。把荷載通過桁架梁和格構柱傳遞給基礎;桁架梁和格構柱是承受垂直荷載的主要構件,并為施工平臺提供足夠的剛度。鋼管立桿縱橫向間距250×250,橫桿步距1m,搭設方式與30m以下○E~○F軸跨內滿堂鋼管排架的搭設基本相同。

圖2 45m高支模示意圖 待續