中華人民共和國公共安全行業標準
本標準參照采用ISO/DIS 9706《表面材料的實體房間火試驗》。
1 主題內容與適用范圍
1.1 本標準規定了表面材料實體房間火標準試驗裝置和測量裝置及試驗方法。
1.2 本標準適用于墻壁內表面及頂板的表面材料。
2 術語
2.1 樣品
要求進行測試數據的材料或組件。
2.2 材料
一種基本的單物質、均勻的混合物、復合物。如金屬、石、木材、混凝土、礦棉等。
2.3 暴露面
試驗中直接受影響的產品表面。
2.4 試樣
準備進行實驗的樣品。
2.5 轟燃時間 t
由試驗開始到轟燃發生的時間間隔。
2.6 熱釋放率 Qb
單位時間內試樣燃燒所釋放的熱量。
2.7 熱輸出率 Qc
單位時間內標準點火源燃燒所釋放的熱量。
3 試驗裝置
3.1 試驗裝置由標準試驗房間、標準點火源、錐形收集器、排煙管道、煙氣冷卻器、風機及測量裝置等組成。如圖1 所示。
中華人民共和國公安部1995-08-17 批準 1996-01-01 實施

圖1 試驗裝置示意圖
3.2 標準試驗房間
3.2.1 標準試驗房間由相互垂直的四面墻、地板和頂板組成,如圖2 所示。室內靜空尺寸:
長 3 600±50mm
寬 2 400±50mm
高 2 400±50mm

圖2 標準試驗房間簡圖
3.2.2 標準試驗房間的門設在一側短邊2400×2400mm 墻的中心,其他墻體、地板及頂板無通風口,門的尺寸為:
GA 111-1995
寬 800±10mm
高 2 000±10mm
3.2.3 試驗房間應由不燃材料構成,密度500~800kg/m3,厚度不應小于20mm。
3.2.4 試驗房間應設置在足夠大的試驗館內,通風條件好、干燥、安全的地方。
3.3 點火源
3.3.1 標準點火源
3.3.1.1 標準點火源由標準點火器和供氣系統組成。
3.3.1.2 標準點火器殼體宜選用1 mm 鋼板焊制, 見圖3 , 尺寸為
170×170×145mm,殼體由金屬網分為上下兩層,分別填裝鵝卵石和砂子,下層鵝卵石的填裝高度為100mm ,上層的砂子與點火器上緣齊平,砂的粒徑約為4~8mm。

圖3 標準點火器示意圖
3.3.1.3 供氣系統應由內裝純度不低于95%的液態丙烷的瓶組、減壓器、穩壓器、測量裝置及輸氣管道組成。
3.3.1.4 丙烷氣的供氣流量測量精度不應低于±3%。
3.3.2 其他點火源
在特殊應用研究中的其他點火源:
a. 觸火焰
b. 具、紙簍以及室內裝修材料等。
3.4 錐形收集器和排煙管道
3.4.1 錐形收集器應能收集標準試驗房間內燃燒所產生的全部煙氣。
3.4.2 錐形收集器應安裝在標準試驗房間門口的上方,底部與房間的頂部齊平,底部尺寸3000×3000mm,高1000mm,錐形收集器底部的一邊緊貼試驗房間,其余三邊用1mm 厚的鋼板向下延伸1000mm,錐形收集器的有效高度為2000mm,見圖4、圖5。錐形收集器的頂部為一900×900×900mm 正方體,為增加湍流效果,應采用兩塊500×900mm 的鋼板安裝在頂部的正方體內,形成煙氣均混器,其結構尺寸見圖5。

圖4
3.4.3 排煙管道安裝在煙氣均混器的出口處,內徑為400mm,直管段不應小于4800mm。
3.4.4 排煙管道直管段的兩端應安裝均流器,使管道內氣體流動均勻,見圖4、圖5。
3.4.5 系統的測量段應設置在排氣管道直管段且氣體均勻混合的地方,測量段必須滿足各種測量裝置的測量及安裝要求。
3.5 煙氣冷卻器
采用水霧冷卻,煙氣通過煙氣冷卻器的出口溫度不應超過80℃。
3.6 風機
3.6.1 風機的排氣量不應小于12 000m3/h,以收集表面材料實體房間火試驗產生的所有煙氣。風機尾部的真空度為2kPa。
3.6.2 風機的排氣量應連續可調。

圖5
4 自動測量及數據處理系統
本標準中,宜選用自動測量與數據處理系統來滿足試驗標定和測試的要求。
5 測量和測量裝置
5.1 標準試驗房間內的測量及測量裝置
5.1.1 熱流
5.1.1.1 選用Grardon 型或熱電型熱流計測量試驗房間內幾何中心的熱流,熱流計接收極為圓形暗黑平面,視角為180°,接收極直徑不大于15mm,接收極外層應設水冷系統,熱流計的
直徑:不大于50mm;
量程:0~50kW/㎡;
精度:±3%;
響應時間:≤1s;
重復性:±0.5%。
5.1.1.2 熱流計應安裝在標準試驗房間地板的幾何中心,接收極中心線應水平且接收極中心距地板高度為5~30mm。
5.1.1.3 熱流計在使用之前,應用基準設備(精度高一級的熱流計)校正,基準設備也應每年進行一次標定。
5.1.2 氣體溫度
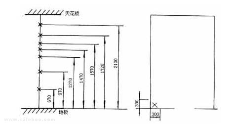
選用七支時間常數不大于0.1s 的熱電偶,測量試驗過程中流入與流出試驗房間氣體的溫度分布。熱電偶的安裝位置見圖6。

圖6 氣體溫度測量位置圖
5.1.3 表面溫度
5.1.3.1 表面溫度是指試驗房間頂板下試樣表面的溫度,表面溫度的測量可用于試驗過程熱平衡的研究。
5.1.3.2 用時間常數不大于0.1s 的熱電偶,固定在試樣外表面測量表面溫度,熱電偶的分布見圖7。

圖7 試樣表面測溫點布置圖
5.1.3.3 將熱電偶固定于表面積1cm2 的低阻熱玻璃纖維帶上測量樣品的表面溫度,可避免對流、輻射和氣溫度變化大等因素的影響。
5.1.4 通過試驗房間門口的氣體流量
GA 111-1995
5.1.4.1 采用雙向測速探頭,差壓變送器和時間常數不大于0.1s 的熱電偶測量流入與流出試驗房間的氣體流速和流量。差壓變送器宜選用電容型,分辨率0.05Pa;量程0~25Pa。
5.1.4.2 雙向測速探頭結構如圖8 所示,它的工作原理是當氣體沿軸線OO′流動時,在a、b 兩管輸出一個差壓信號,經電子差壓儀表(差壓變速器)變為電壓信號,根據雙向測速探頭的指定曲線計算出風速值。

圖8 雙向測速探頭
5.1.4.3 測量試驗房間門口氣體的流量,宜選用固定于門中心,安裝高度分別為1 300、1 800、1 900mm 的三個雙向測速探頭來測量,測量精度可達±20%。
5.1.4.4 氣體質量流量
按5.1.4.1~5.1.4.3

所述,單位時間單位面積的氣體質量流量為:
…………………………(1)
式中:m′—單位時間單位面積通過氣體的流量,kg•m-2•s-1;
Ts—測量點處氣體的溫度,K;
υ—氣體流速,m•s-1;
ρs—溫度為Ts 時氣體的密度,kg/m3;
Kp—雙向測速探頭的修正常數,1.08;
P △ —雙向測速探頭a、b 管的壓差,Pa;
ρ0—1atm,0℃時空氣的密度,kg/m3;
T0—273.15K。
雙向測速探頭的修正系數Kp =1.08。當風速為0.3m/s 時,用雙向測速探頭測速的最大誤差±7%,而且隨著風速的降低,最大的測量誤差也會增加。流出試驗房間門口的氣體質量流量Mout 為單位面積的氣體質量流量m′在開口寬度對中性面以上部位積分。中性面為房間門口流入/流出氣體的臨界面。
5.15 對流散熱
GA 111-1995
流出試驗房間門口的對流散熱計算見公式(2)。
………………………………(2)
式中:Q′—單位面積的對流熱流率,J•m-3•s-1;
m′—單位面積的質量流量,kg•m-2•s-1;
Cp—燃氣比熱,J•kg-1•K-1;
Ts—氣流溫度,K;
Ti—環境溫度。
流出開口總對流散熱是根據5.1.4.4 條的氣體質量流量m′對面積的積分來計算。
5.2 排煙管道內的測量及測量裝置
5.2. 1 體積流量
5.2.1.1 氣體的體積流量由雙向測速探頭、差壓變送器和時間常數不大于0.1s 的熱電偶來測量,雙向測速探頭和熱電偶應安裝在排煙管道測量段的管道截面中心,雙向測速探頭的結構見5.1.4.2 條所述。差壓變送器選用電容型,分辨率應高于±5%Pa,測量范圍0~2 000Pa,測量誤差應小于0.5%,體積流量方程見附錄A(補充件)。
5.2.1.2 體積流量的測量精度不應低于±5%,階躍變化的響應時間(由初始狀態到最終狀態流量的90%)不超過1s。
5.3 氣體分析
5.3.1 氣體取樣系統
5.3.1.1 氣體取樣系統由取樣管、兩級過濾器、冷凝器、不銹鋼導管、取樣泵、樣氣分配器等組成,見圖9。

圖9 取樣預處理系統原理圖
5.3.1.2 取樣管應按圖10 所示安裝在排煙管道的測量段上氣體混合均勻的部位,取樣管進氣孔應向下,以避免煙垢的阻塞。
5.3.1.3 取樣管應選用不銹鋼管制造,氣體在進入分析儀器前,應經過二級過濾(一級150µ~200µ,二級3µ)。并將氣樣冷卻到10℃以下,且取樣管應盡可能短。
5.3.1.4 氣樣由取樣泵送到分析儀器,取樣過程中應避免油脂或類似物質污染氣樣。取樣泵容量宜為10~50L/min,每一氣體分析儀消耗為1 L/min,泵所產生的壓差約為10kPa。
5.3.1.5 氣樣由排煙管道到進入氣體分析儀器的時間間隔不應超過1s。
5.3.2 煙氣氣體分析
5.3.2.1 氧濃度
采用順磁法對氧在煙氣中的含量進行連續測量,氧氣標準氣樣宜選用15%~18%。
測量范圍:0~10%;
最大測量誤差:滿量程的±1%;
響應時間:小于3s。

圖10 取樣管
5.3.2.2 一氧化碳(CO)和二氧化碳(CO2)的濃度采用不分光紅外分析儀進行連續測量。
a. CO 分析儀
測量范圍:0~1%;
最大測量誤差:滿量程的±1%;
響應時間:小于3s。
b. CO2 分析儀
測量范圍:0~6%;
最大測量誤差:滿量程的±1%;
響應時間:小于3s。
5.3.2.3 碳氫化合物濃度
用乙烷作為參照標準,采用光譜分析法進行測量。
測量范圍:0~2 000ppm;
最大誤差:滿量程的±2%;
響應時間:小于6s。
5.4 光學煙密度計
5.4.1 光學煙密度計由光源、透鏡、光電元件等組成,見圖11。測量過程中由于煙的積塵,光透過率的減小不應超過5%。
5.4.2 光源
用6V、10W 的碘鎢燈,燈絲的工作溫度為2900±100K,光源的供電電源精度不應超過±2%。

圖 11 光學煙密度計原理圖
5.4.3 透鏡
選擇適當的直徑和焦距的凸透鏡,使得通過排煙管道的平行光束直徑至少20mm(兩個透鏡直徑D=40mm,焦距f=50mm)。
5.4.4 光圈
光圈應設置在透鏡L2 的焦點上,光圈的直徑d 與L2 的焦距f2 之比應滿足d/f2≤0.04。
5.4.5 光電接收元件
采用單晶硅光元件,通過接收的光束強度變化來確定煙密度,光強度的測量精度不應低于±5%。
5.4.6 光學煙密度計應安裝在排煙管道煙氣分布均勻的位置,光束能垂直穿過排煙管道。光學煙密度計的安裝不應影響測速及取樣。光學煙密度計的玻璃窗宜選用石英玻璃。
6 系統的試驗標定
6.1 將標準點火流量置于錐形煙氣收集器下,點火后按要求調整火源的熱輸出,由自動測量及數據處理系統測量出各參數并繪制出各參數隨時間的過程變化曲線,計算公式見附錄A 。系統的試驗標定包括:靜態標定、系統的響應時間和不同排風量條件熱釋放率漂移三部分。
6.2 靜態標定
6.2.1 將標準點火源置于錐形煙氣收集器下,在排風量不變的條件下,分別以熱輸出100kW 和300kW 對系統進行靜態標定。
6.2.2 每組數據的采集時間間隔不應超過6s。
6.2.3 技術要求
火源穩定后,基于耗氧量原理測得的熱釋放率在1min 內的平均值與實際熱輸出平均值的不一致性應在±5%以內。
6.3 系統的響應時間
6.3.1 系統的響應時間是指由點火源輸出躍變到一個給定值到測得熱釋放率到達該給定值的90%所需時間。
GA 111-1995
6.3.2 將標準點火源置于錐形煙氣收集器下,啟動試驗裝置使系統處于穩定狀態。按下列要求迅速調整火源的熱輸出。由自動測量系統及數據處理系統測量火源熱輸出和量熱器測量的熱釋放率隨時的過程變化曲線來確定系統的響應時間。

6.3.3 每組數據的采集時間間隔不應超過6s。
6.3.4 技術要求
系統的響應時間不應超過20s。
6.4 不同排風量,測量熱釋放率的浮移。
6.4.1 試驗過程中,應隨著火的發展適當調整排煙量,來保證其測量精度。
6.4.2 標準點火源置于錐型煙氣收集器下,排煙管道的風量由2m3/s 到最大值分為四級對熱輸出為300kW 的靜態火源進行測試標定。
6.4.3 技術要求
每級穩定狀態下,測量的熱釋放率在1min 內平均值與實際熱輸出的平均值比較,誤差不應超過10%。
7 試驗樣品
7.1 試驗樣品應直接粘(釘,貼)在試驗房間內,具體的尺寸和固定方法按其使用情況決定。
7.2 普通薄型表面材料,如涂料,油漆等,宜根據它們的使用情況應用于下列基質:
a. 不燃纖維加固的硅酸鈣板,干燥密度為680±50kg/ m3,適宜厚度9~
13mm。
b. 不燃板,干燥密度1650±50kg/ m3,適宜溫度9~13mm。
c. 普通薄板,標準狀況下密度680±50kg/ m3,適宜厚度9~13mm。
d. 石膏板,標準狀況下725±50kg/ m3,適宜厚度9~13mm。
上面介紹的基質a~c 有下列可比產品:
No.1 輕質混凝土;
No.2 磚和混凝土;
No.3 適當密度的木質產品;
鋼和無機纖維能在特殊的情況下應用。
7.3 涂料和油漆一般由用戶選擇適當的基底。
7.4 熔融的熱塑料材料,也能在7.2 段中介紹的適當基底上試驗。
7.5 對于新的阻熱產品,應在試驗報告中做詳細說明。
7.6 試驗前,試樣應在1atm,23±2℃,相對濕度(50±5)%的條件下達到質量恒定即可進行試件的安裝和試驗,而對于木質基質的材料或具有蒸發性的材料
則需在上述條件下至少存放四周,才能進行安裝和試驗。
7.7 試驗樣品的結構
7.7.1 試驗樣品的標準結構
在墻和頂板粘貼遮蓋產品(壁紙等)作為試驗樣品的標準外型結構,不同的式樣應具有可比性。
7.7.2 可選擇樣品的結構
試驗樣品只覆蓋墻,頂板上有標準材料或試驗樣品只覆蓋頂板,墻上有標準材料。標準材料見7.2 條所述。
7.7.3 特殊情況下,不同的墻和頂板材料組合也是可行的。
8 試驗
8.1 初始條件
8.1.1 標準試驗房間及周圍環境的背景溫度為20±10℃,相對濕度(50±5)%。
8.1.2 標準試驗房間門中心1m 的范圍內,水平風速不應超過0.5m/s。
8.1.3 在標準試驗房間正對門的墻角劃一0.3×0.3m 的方格,標準點火器應置于此方格的中心,點火器表面應清潔。
8.1.4 試驗前應對試樣進行拍照并錄像。
8.2 試驗步驟
8.2.1 啟動風機、煙氣冷卻系統、自動測量及數據處理系統,試驗前半分鐘,整套系統應處于正常的工作狀態,并采集所需的數據。
8.2.2 點燃點火火源為試驗開始,10s 內應將標準點火火源的熱輸出調整到100kW,記錄試驗時間并應隨著火的發展適當調整風機的排風量。
8.2.3 如果10min 內出現轟燃則轟燃結束后停止試驗。如未出現轟燃,10min 后將火源熱輸出調至300kW,如果出現轟燃則轟燃結束后停止試驗。如不出現轟燃保持10min 結束試驗。
8.2.4 試驗過程中,應對試樣進行拍照和錄像,時鐘也應在照片和錄像上顯示出來,時鐘的最小刻度為1s。通過拍照和錄像應記錄下述現象及其發生時刻:吊頂面著火;墻和吊頂面上的火焰傳播;火源熱輸出的改變;門口處出現火焰;試樣的總體表現;轟燃等。
8.2.5 試驗結束后,打印試驗數據,并繪制有關參數的時間變化曲線。
8.2.6 試驗結束后,應繼續觀察直至可見燃燒停止,記錄試樣的損壞程度。
9 試驗報告
試驗報告中應記錄下列內容:
a. 試驗場所的名稱、地點;
b. 試驗日期和參加試驗的人員;
c. 委托試驗人的姓名,地址;
d. 試驗目的;
e. 樣品規格;
f. 試樣生產廠或提供試樣廠家名稱;
g. 試樣名稱及商標;
h. 試樣厚度、單位面積的重量和密度;
i. 樣品的供貨日期;
j. 試樣的固定技術說明;
k. 試樣的初始條件;
l. 試樣報告和打印記錄日期;
m. 試驗方法;
n. 試驗結果。
(1) 地板幾何中心的熱流-時間曲線;
(2) 排煙管道的質量流量-時間曲線;
(3) 總熱釋放率-時間曲線;
(4) 二氧化碳CO2 產生量;
(5) 一氧化碳CO 產生量;
(6) 煙的產生量;
(7) 火災發展狀況的詳細說明;
(8) 標定結果;
(9) 表面溫度-時間曲線;
(10) 通過門口的質量流量-時間曲線;
(11) 通過門口氣體的垂直溫度分布-時間曲線;
(12) 通過門口的對流散熱-時間曲線;
(13) 碳氫化合物的產生量;
(14) 氮氧化合物的產生量;
(15) 是否產生轟燃;
(16) 到達轟燃的時間;
10 試樣的火災危險性評價
本方法是以是否發生轟燃和到達轟燃的時間作為重要參數來評價試樣的火
災危險性,試驗結果中的其他參數作為評價試樣的火災危險性的輔助參數。
11 試驗的安全措施及注意事項
11.1 試樣在燃燒過程中,試驗人員都可能受到有毒或者有害氣體的傷害,所以
試驗人員應配戴防毒面具。
11.2 試驗裝置附近應設置滅火設施。
消防救援人員職業健康保護指南
超細干粉滅火劑
建筑火災逃生避難器材 第8部分:化學…
城市消防遠程監控系統 第3部分:報警…
細水霧滅火系統及部件通用技術條件
城市消防遠程監控系統 第4部分:基本…
火災技術鑒定方法 第5部分:氣相色…
火災技術鑒定方法 第2部分:薄層色…
消防安全標志設置要求
爆炸和火災危險環境電力裝置設計規范…
手提式干粉滅火器
火災報警設備圖形符號【作廢】
民用爆破器材企業安全管理規程
住宿與生產儲存經營合用場所消防安全…
消火栓扳手
建筑滅火器配置設計規范【作廢】