2020年1月25日,武漢市新型肺炎防控指揮部決定,除武漢蔡甸火神山醫院之外,還將半個月之內再建一所“小湯山醫院”——武漢江夏區雷神山醫院,雷神山醫院于1月26日正式開建!
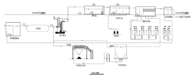
雷神山醫院污水處理采用生化處理,污水處理平面圖見圖1,具體工藝 流程為:接觸消毒-化糞池-調節池-MBBR池-高效沉淀池-消毒-排至市政污水管網!

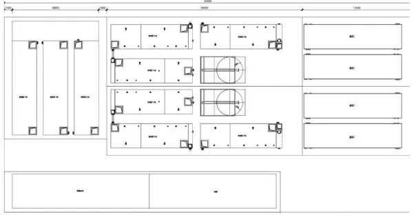
圖1:雷神山污水處理平面圖

圖2:雷神山污水處理剖面圖
MBBR工藝的工作原理及應用特點
移動床生物膜工藝(Moving Bed Biofilm Reactor,MBBR)已在世界上很多國家建成了數千套污(廢)水處理設施,取得了良好的處理效果。MBBR工藝運用生物膜法的基本原理、同時結合活性污泥法的優點,以懸浮填料作為微生物生長的載體,通過懸浮填料在二級生化池中的充分流化,實現污水的高效處理。
一、工作原理
移動床生物膜工藝(Moving Bed Biofilm Reactor,MBBR)需要具有比重接近于水,有效比表面積大,適合微生物附著生長等特點的懸浮填料,目前國內已經有多家設備廠商開發成功,我國也頒布了相應的行業規范。懸浮填料在生化池中輕微攪拌即可懸浮起來,易于隨水自由運動,能夠很好的形成流化狀態。
在好氧條件下,曝氣充氧時產生的空氣泡上升浮力能夠推動填料和周圍的水體流動,當氣流穿過水流和填料空隙時又被填料阻滯,并被分割成小氣泡。
在這樣的過程中,填料被充分地攪拌并與水流混合,而空氣流又被充分地分割成細小的氣泡,增加了生物膜與氧氣的接觸和傳氧效率。在厭氧條件下,水流和填料在潛水攪拌器的作用下充分流化起來,達到生物膜和被處理的污染物充分接觸而降解的目的。
MBBR工藝的核心是實現懸浮載體填料的充分流化,以達到強化處理污染物的目的。在MBBR工藝的實際應用上,需要考慮的因素主要有生化池池型、懸浮填料投加量、曝氣系統、攔截篩網、推進器等。
在曝氣區內生物填料的流化是系統實現良好處理功能的關鍵。其主要依靠生化池的好氧區曝氣系統來實現。在好氧區中適當的曝氣系統能夠確保生物載體流化填料的流化效果,保證流化填料在水體中做上下、前后的流動,使填料與污水進行充分的混合、碰撞、接觸,有效完成污染物、水、氣三相的接觸、交換、吸附等過程。
填料比重一般選擇為0.94-0.97,在培菌期間,填料表面會慢慢附著大量的生物膜,附著量越大,比重逐漸增加,當填料上生物膜到一定厚度時,其比重大于1,填料從非曝氣區下沉到水池底部,曝氣區底部的沖擊力最強,能迅速沖洗掉填料上的殘余生物膜,脫膜后的填料比重也隨之降低到1以下,并在曝氣區上升。
根據掛膜前后的比重變化特點,填料可以隨水流在曝氣區和非曝氣區翻騰,從而交替完成了生物膜的生長和脫落過程,保證生物膜的數量穩定性和活性,使工藝運行較穩定。為了防止流化懸浮填料隨混合液進入下一個環節,在好氧區內適當位置設計采用篩網進行簡單攔截和分隔。篩網材質選用不銹鋼,型式與懸浮填料配套。
二、優缺點分析
1、MBBR的優點
與活性污泥法和固定填料生物膜法相比,MBBR既具有活性污泥法的高效性和運轉靈活性,又具有傳統生物膜法耐沖擊負荷、泥齡長、剩余污泥少的特點。
(1)填料特點
填料多為聚乙烯、聚丙烯及其改性材料、聚氨酯泡沫體等制成的,比重接近于水,以圓柱狀和球狀為主,易于掛膜,不結團、不堵塞、脫膜容易。
(2)良好的脫氮能力
填料上形成好氧、缺氧和厭氧環境,硝化和反硝化反應能夠在一個反應器內發生,對氨氮的去除具有良好的效果。
(3)去除有機物效果好
反應器內污泥濃度較高,一般污泥濃度為普通活性污泥法的5~10倍,可高達30~40g/L。提高了對有機物的處理效率,同時耐沖擊負荷能力強。
(4)易于維護管理
曝氣池內無需設置填料支架,對填料以及池底的曝氣裝置的維護方便,同時能夠節省投資及占地面積。
2、MMBR缺點
(1)反應器中的填料依靠曝氣和水流的提升作用處于流化狀態,在實際工程中,容易出現局部填料堆積的現象。為了避免填料堆積現象,需改進曝氣管路的布置以及反應器的結構。反應器的結構在很大程度上決定了它的水力特性。實際工程中,當單個反應器的長深比為0.5左右且長度不大于3m時有利于填料完全移動。在實際工程設計時應通過大量試驗來優化反應器的構造和水力特性,降低能耗,進一步提高MBBR的經濟效益。
(2)反應器出水往往設置柵板或格網以避免填料流失,但容易造成堵塞。在實際工程中,可以設置活動柵板,定期進行人工清理,也可設置空氣反吹裝置以防止堵塞。
三、填料的判別指標
1、生物膜的附著性
生物膜的附著能力-評價填料優劣的最重要指標生物附著量=受保護的表面積(與填料的設計運行狀態有關)× 單位表面積的生物附著量(與填料的性能有關)
2、填料性能
填料性能-評價填料生物附著量的最重要指標
(1)填料表面性能
1)表面構造:一般認為表面粗糙度大,掛膜速度快。
2)表面電位:一般微生物帶負電荷,填料表面為正電荷適宜微生物生長。
3)親水性:微生物為親水性粒子,填料親水性好適合微生物生長掛膜狀態。
(2)水力學性能
1)孔隙率:填料占用的體積,孔隙率高好。
2)形狀尺寸:影響水流、氣流的流態。
3)流化性能:與填料的密度有關。填料的密度應為0.97-1.03,較小的曝氣或攪拌即可實現流化。
3、掛膜成熟判別
肉眼判斷:生物膜均勻分布于載體表面,越靠近載體表面越致密,反之越松散,同時載體顏色變深,標志著載體掛膜進入了成熟期。
鏡檢判斷:生物膜結構致密,微生物種類多樣化,固著型纖毛蟲、鐘蟲、累枝蟲等數量居多,有少量輪蟲、游泳型
污水處理過程中溶解氧的控制問題匯總
論污水的化學處理之化學混凝法
超低排放改造與脫硫廢水處理的優化探討
淺析化工廢水特點及廢水處理原則、特征
三種常見的高鹽廢水處理方式
城市黑臭水體治理技術體系研究
化工污水處理過程中的危險因素分析
關于污泥性狀異常及簡單分析結果
UASB厭氧處理工藝
污水處理系統應急預案
農村生活污水處理
燃煤電廠脫硫廢水零排放預處理工藝選…
煤化工廢水處理技術研究
SBR法處理煤化工廢水中石油烴類的試…
發電廠節水及廢水綜合利用改造實例
工業園區污水處理工藝選擇