SBR---一種按間歇曝氣方式來運行的活性污泥污水處理技術,又稱序批式活性污泥法。與傳統污水處理工藝不同,SBR技術采用時間分割的操作方式替代空間分割的操作方式,非穩定生化反應替代穩態生化反應,靜置理想沉淀替代傳統的動態沉淀。
SBR是序列間歇式活性污泥法(SequencingBatchReactorActivatedSludgeProcess)的簡稱,它的主要特征是在運行上的有序和間歇操作,SBR技術的核心是SBR反應池,該池集均化、初沉、生物降解、二沉等功能于一池,無污泥回流系統。

優點
1、理想的推流過程使生化反應推動力增大,效率提高,池內厭氧、好氧處于交替狀態,凈化效果好。
2、運行效果穩定,污水在理想的靜止狀態下沉淀,需要時間短、效率高,出水水質好。
3、耐沖擊負荷,池內有滯留的處理水,對污水有稀釋、緩沖作用,有效抵抗水量和有機污物的沖擊。
4、工藝過程中的各工序可根據水質、水量進行調整,運行靈活。
5、處理設備少,構造簡單,便于操作和維護管理。
6、反應池內存在DO、BOD5濃度梯度,有效控制活性污泥膨脹。
7、SBR法系統本身也適合于組合式構造方法,利于廢水處理廠的擴建和改造。
8、脫氮除磷,適當控制運行方式,實現好氧、缺氧、厭氧狀態交替,具有良好的脫氮除磷效果。
9、工藝流程簡單、造價低。主體設備只有一個序批式間歇反應器,無二沉池、污泥回流系統,調節池、初沉池也可省略,布置緊湊、占地面積省。
應用
1) 中小城鎮生活污水和廠礦企業的工業廢水,尤其是間歇排放和流量變化較大的地方。
2) 需要較高出水水質的地方,如風景游覽區、湖泊和港灣等,不但要去除有機物,還要求出水中除磷脫氮,防止河湖富營養化。
3) 水資源緊缺的地方。SBR系統可在生物處理后進行物化處理,不需要增加設施,便于水的回收利用。
4) 用地緊張的地方。
5) 對已建連續流污水處理廠的改造等。
6) 非常適合處理小水量,間歇排放的工業廢水與分散點源污染的治理。
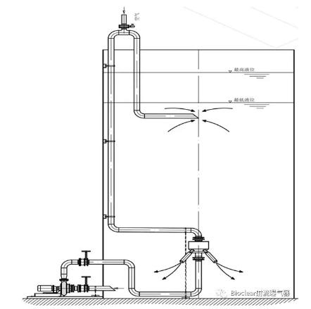
曝氣系統
序批式活性污泥法中,曝氣裝置的能力應是在規定的曝氣時間內能供給的需氧量,在序批式活性污泥法中,由于在同一反應池內進行活性污泥的曝氣和沉淀,曝氣裝置必須是不易堵塞的,同時考慮反應池的攪拌性能。常用的曝氣系統有氣液混合噴射式、機械攪拌式、穿孔曝氣管、微孔曝氣器,一般選射流曝氣,因其在不曝氣時尚有混合作用,同時避免堵塞。


射流曝氣器通過切換接風口的管路的位置來達到曝氣和攪拌相互切換的目的。

污水處理過程中溶解氧的控制問題匯總
論污水的化學處理之化學混凝法
超低排放改造與脫硫廢水處理的優化探討
淺析化工廢水特點及廢水處理原則、特征
三種常見的高鹽廢水處理方式
城市黑臭水體治理技術體系研究
化工污水處理過程中的危險因素分析
關于污泥性狀異常及簡單分析結果
UASB厭氧處理工藝
污水處理系統應急預案
農村生活污水處理
燃煤電廠脫硫廢水零排放預處理工藝選…
煤化工廢水處理技術研究
SBR法處理煤化工廢水中石油烴類的試…
發電廠節水及廢水綜合利用改造實例
工業園區污水處理工藝選擇