摘要:文章介紹了濕式靜電除塵除霧器的工作、結構性能及凈化熔鋁爐煙氣的運行效果。實踐證明濕式除塵器凈化熔鋁爐煙氣的應用是成功的,并具有良好的推廣應用價值。
1 工程概述
廣東某鋁業有限公司是一家從事工業廢鋁、鋁錠回收利用的企業。熔鋁爐在熔煉廢鋁、鋁錠的過程中,會產生煙塵、二氧化硫和黑煙等污染物。原配套有布袋除塵器和麻石塔,但效果不理想,因此業主委托我公司進行改造設計。采用濕式靜電除塵器為主要凈化設備的處理工藝,處理煙氣量為30000m3/h,進入濕式靜電除塵器前煙氣溫度小于等于120℃。自2015年投運至今,除塵除霧效果較高,運行良好。
1.1 原有煙氣處理工流程

1.2 原來煙氣處理工藝存在問題
原有的煙氣處理系統存在以下問題,導致煙氣處理系統的效果不理想,不能達到現行的環保要求:
(1)原有的布袋除塵室除塵效率低、溫度高容易燒袋、清灰方式落后;(2)原的有麻石塔噴淋塔效率低;(3)兩臺爐之間的煙氣切換閥無法正常開關,加上布袋清灰方式落后且阻力大,采用前推后拉兩臺風機仍無法將煙氣有效收集。
1.3 改造工設計

2濕式靜電除塵除霧器工作原理
在濕式靜電除塵器的陽極板(管)和陰極線之間施加數萬伏直流高壓電,在強電場的作用下,陰陽兩極間的氣體發生局部電離,使得高效消煙靜電除塵器空間充滿帶負電荷的離子;隨煙氣流進入高效消煙靜電除塵器內的塵(霧)粒子與這些負離子相碰撞而荷電,帶電塵(霧)粒子由于受到高壓靜電場庫侖力的作用,向陽極運動;到達陽極后,將所帶的電荷釋放掉,塵(霧)粒本身則由于其固有的黏性而附著在陽極板(管)上,然后通過液體沖洗的方法清除;[1]由于濕式電除塵器采用水流沖洗,沒有振打裝置,所以不會產生二次揚塵[2],實現超低濃度排放。
3 技術參數表

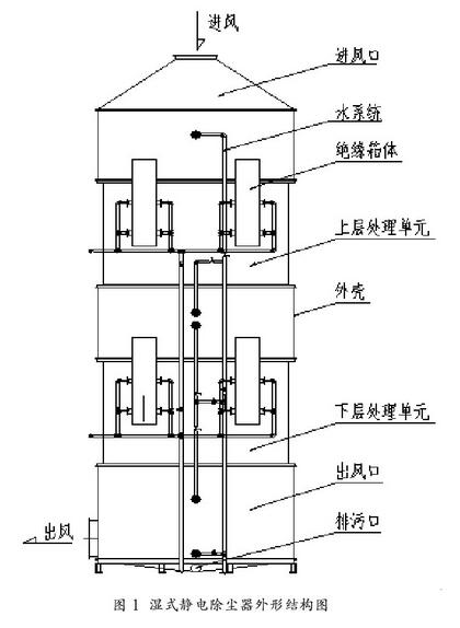
4 設備主要結構及性能
(1)濕式除塵除霧器由進風口、出風口、上下兩層處理單元組成,每層處理單元均配置陽極板(管)、放電極(陰極線)、絕緣箱體、水系統和獨立的供電電源。
(2)陽極板(管)為導電玻璃鋼六角管,內切圓為300mm,下正六邊形管組成蜂窩管束,結構緊湊,質量輕[3]。蜂窩式布置,能更加有效利用空間、并使氣流有效均勻的分布。陽極管采用為石墨粉、乙烯基酯樹脂、玻璃鋼纖維布制作而成,具有耐腐蝕、耐溫、阻燃性和導電性好等特點,從而保證較好的除塵效果。
(3)放電極(陰極線)采用鈦金屬材質的φ19管材、長針刺線型;采用“單電源供電多電場分布”專利技術(專利號ZL 97 2 46596.0),按動態和分布參數對放電極(陰極線)進行設計,使整個通道都達到高除塵效率提交除塵除霧效率。
(4)絕緣箱體安裝于設備兩側,采用外置絕緣結構,絕緣體不直接與含塵氣體接觸絕緣子不直接接觸,更好得保證絕緣體干凈、干燥,避免結露、爬電現象,從而達到有效絕緣的目的。


(5)水系統(清洗部份):陽極板(管)表面是否能夠持續保持干凈、清潔是濕式除塵除霧器能否長期穩定運行的關鍵。所以每個單元內設置噴淋清洗裝置,沖洗噴頭采用120°廣角實心圓形陶瓷噴頭,可以全方位清洗濕式除塵設備內部件的塵霧,從而確保濕式除塵具有良好的運行狀態和較高的除塵除霧效率。絕緣箱體也設置噴淋清洗裝置沖洗噴頭采用120°廣角實心扇形陶瓷噴頭,確保絕緣子干凈、避免結露、爬電現象,確保有絕緣性能。噴淋清洗時間為1-2分鐘,清洗間隔時間根據現場運行狀態設定。
(6)濕式電除塵器設用水及麻石塔降溫用水均采購循環水,通過循環水池對濕式除塵器灰水進行處理中和后,達到噴淋用水的要求即可以回收利用;定期清查,排出的水份可進行清水補充,維持水系的平衡。
(7)濕式電除塵器設備采三相高壓整流電源供電,電源型號為CKD-350mA/60kV,每層處理單元配套一個電源。每層單元獨立供電,確保一個單元故障,另一個單元還能正常工作。
(8)所有控制部分采用集中控制,主要控制包括:高壓電源控制、安裝聯鎖控制、噴淋清洗控制、超溫報警控制、故障報警控制。
5 運行情況
濕式靜電除塵器投入運行后,除塵效果顯著,煙囪排放效果肉眼可見,基本無有色煙氣排放。在調試運行中,出顯超濕報警現象。經檢查,發現原麻石塔入降溫噴頭堵塞。現場直接對噴頭進行整改,讓噴頭水流與煙氣同一流向。從而使噴頭不被進入原麻石塔煙氣所帶的粉塵附著堵塞。整改后系統運行正常,運行的各項指標正常、穩定。現檢測數據表明濕式靜電除塵器的出口煙塵量排放濃度39.7 mg/m3低于排放要求的100mg/m3。二氧化硫等也降至低于排放標以下。
6 結束語
濕式靜電除塵除霧技術及其在熔鋁爐煙氣應用,成功解決了熔鋁爐在熔煉廢鋁、鋁錠的過程中產生的煙塵、二氧化硫和黑煙等污染物等環境污染問題及對人體健康影的問題,并確保企業的正常生產。隨著國家對大氣環境治理的日益重視,相信濕式靜電除塵器會更快普及到各大行業廢氣治理上,在我國大氣污染治理工程中起到重要作用。
垃圾焚燒煙氣超低排放改造技術探討
生活垃圾焚燒煙氣污染物的控制與處理…
乙烯基酯玻璃鋼在垃圾焚燒煙氣凈化系…
生活垃圾焚燒煙氣凈化處理技術
垃圾焚燒廠煙氣凈化SCR改造設計和脫…
煙氣脫硫副產物的處理與處置
回轉窯焚燒系統危廢處置煙氣CO超標分析
垃圾焚燒發電中的排放氣體控制技術
影響大氣污染的主要因素是什么?
焦爐煙氣脫硫脫硝凈化技術與工藝
硫化物的主要去除方法
脫硫方法的分類
中國CCUS技術發展趨勢分析
高爐煤氣干法除塵布袋周期破損原因分…
新型干法水泥窯捕集純化(減排)二氧…
汽車尾氣污染控制方法